Crystal School: Architectural Details
Fall 22

Type: Academic
Status: Done
Status: Done
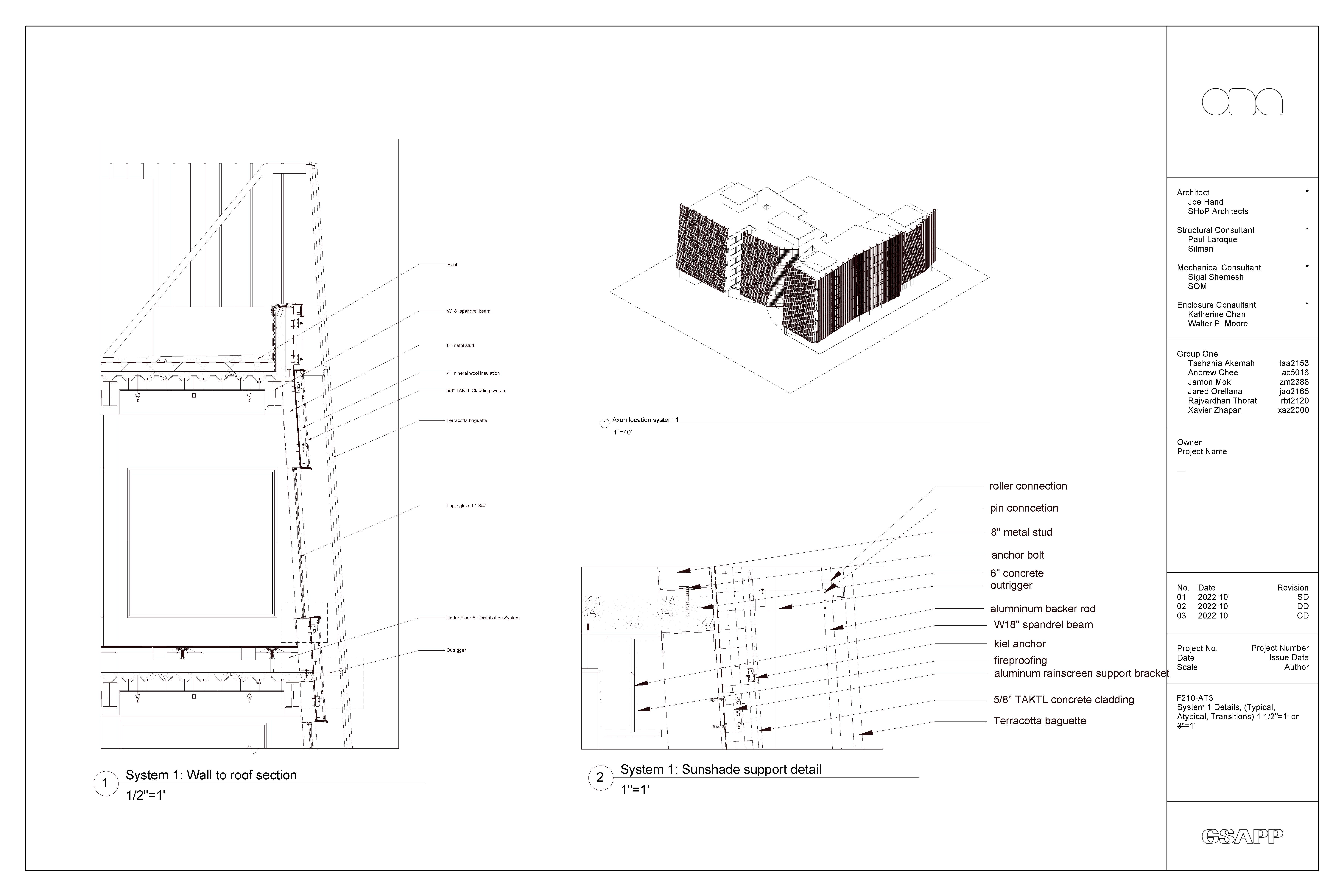
Architectural detail drawings for a school construction that utilizes vertical shading device. I was personally responsible for the following part. This project is an exercise in Revit and construction details.
Collaborators: Andrew Chee, Jamon Mok, Jared Orellana, Radjavhan Thorat, Xavier Zhapan
Collaborators: Andrew Chee, Jamon Mok, Jared Orellana, Radjavhan Thorat, Xavier Zhapan